Osadi is preparing apartment-style worker housing in Lunas Vision City, Kulim, Kedah to support compliant, organized living for the manufacturing workforce in the Kulim corridor. Each unit follows an apartment format (typically 3 rooms, 3 bathrooms), with tenancy and facility management handled end-to-end by Osadi.
This development also comes at a critical time. The Kulim Hi-Tech Park Local Authority (PBT TPHTK) has announced that, effective 1 January 2026, all residential premises under its jurisdiction can no longer be used for foreign worker housing. Employers must plan relocation to compliant facilities in line with Act 446. Osadi’s new Centralised Living Quarters (CLQ) in Lunas Vision City provides a ready solution located just minutes from Kulim Hi-Tech Park.
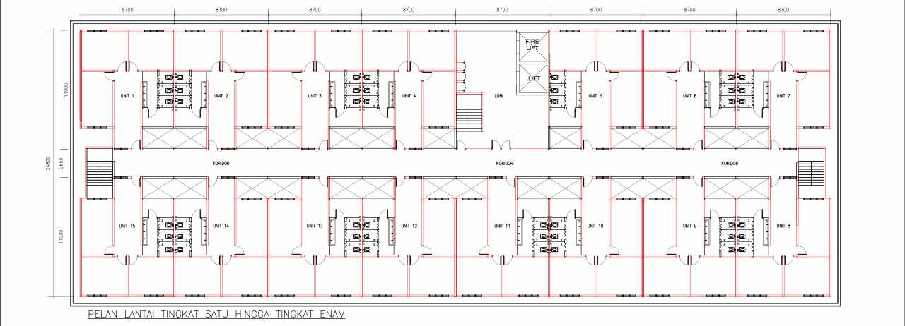
Osadi’s Centralised Living Quarters (CLQ) at Lunas Vision City, Kulim, Kedah. Construction and commissioning are ongoing. The site is open for guided visits. Tenant move-ins will commence after authorities’ approvals and utilities energisation.

Apartment-style worker housing in Lunas Vision City Kulim: Quick facts
- Three 7-storey blocks, designed for worker housing with dedicated amenities
- Each unit accommodates up to 12 residents (apartment-style, 3R3B)
- 15 units per floor, ≈180 residents per level
- 300 units across 3 blocks, housing up to ~3,600 residents
- Central facility floor dedicated to essential amenities
Apartment-style layout
Unlike mass dormitories where 10–20 workers share a single hall, Osadi’s CLQ is built on an apartment-style floor plan. Each unit is self-contained (3 rooms, 3 bathrooms), with occupancy capped at 12 residents per unit. This structure provides better privacy, easier shift management, and smoother CSR audit outcomes.

On-site shared facilities
- Facilities are designed to promote comfort, safety and community well-being.
- Rest & quarantine area
- Medical room
- Dining area (including halal dining)
- Convenience store
- Reading room
- Laundromat
- Surau

Everyday convenience
The site is located within Lunas Vision City — a walkable township with:
- Eateries and food courts
- Laundromats and convenience outlets
- A hypermarket anchor
- Major F&B chain stores
- Safe pedestrian and cycling access for residents.
- Outdoor recreational space for community activities.
Compliance and audits
- Designed in alignment with Act 446 standards
- Audited tenancy confirmed by major clients (documentation available upon request)
- Move-ins will commence only once CCC/OC, fire safety certification and utilities commissioning are complete
→ For further background on the TPHTK housing ruling effective January 2026, see our Insight article
for details on Act 446 requirements and employer responsibilities.
For enquiries or to arrange a site visit, please contact us
Telephone: +604 642 1135 or WhatsApp Us →
Email: bdteam@osadi.com.my
📍 Location of Osadi’s Centralised Living Quarters (CLQ) at Lunas Vision City, Kulim, Kedah
Prepared by Ken Wooi
Business Development Team
bdteam@osadi.com.my



HRVOTY Best HR Outsourcing Partner, Best RPO Partner, Best Staffing Firm
